Thiết kế quán cafe 2 tầng rất dễ bị đội chi phí nếu không kiểm soát ngay từ bản vẽ. Thực tế, phần lớn phát sinh đến từ thiết kế thiếu định hướng vận hành và ngân sách rõ ràng. Với kinh nghiệm thiết kế quán cafe 2 tầng, 5E Design nhận thấy chi phí hoàn toàn có thể kiểm soát nếu bố trí mặt bằng, kết cấu và kỹ thuật đúng ngay từ đầu. Bài viết này chia sẻ cách không đội chi phí đầu tư khi thiết kế quán cafe 2 tầng dưới góc nhìn kiến trúc sư.
Một số yếu tố khi thiết kế quán cafe 2 tầng không bị đội vốn
Xác định ngân sách đúng cách ngay từ giai đoạn thiết kế
Việc thiết kế khi chưa khóa ngân sách thường dẫn đến tình trạng vẽ vượt khả năng chi trả, buộc phải điều chỉnh bản vẽ trong quá trình thi công và phát sinh chi phí không cần thiết.

Dưới góc nhìn kiến trúc sư, ngân sách đúng phải được phân tách cụ thể cho từng hạng mục như: xây dựng thô, hoàn thiện, nội thất và hệ kỹ thuật. Khi ngân sách được đưa vào ngay từ giai đoạn thiết kế, kiến trúc sư có thể lựa chọn giải pháp mặt bằng, kết cấu và vật liệu phù hợp, tránh tình trạng “vẽ đẹp nhưng không thi công được”.
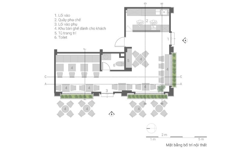
Bố trí mặt bằng 2 tầng hợp lý để tránh phát sinh thi công
Tầng trệt cần được ưu tiên cho các khu vực tạo doanh thu như quầy order, quầy pha chế và chỗ ngồi xoay vòng nhanh, đồng thời bố trí lối đi rõ ràng để giảm xung đột khi quán đông khách. Tầng lầu nên được xác định rõ mục đích sử dụng ngay từ đầu (ngồi lâu, nhóm khách, làm việc…) để khóa mặt bằng, tránh thay đổi layout nội thất sau khi đã thi công thô.

Mặt bằng quán cafe 2 tầng chỉ thực sự hiệu quả khi được chốt đồng thời với vị trí cầu thang, WC và hệ kỹ thuật. Khi các yếu tố này được định vị chính xác ngay từ giai đoạn thiết kế, quá trình thi công sẽ diễn ra liền mạch, hạn chế tối đa phát sinh và giúp kiểm soát chi phí đầu tư.
Kiểm soát chi phí kết cấu ngay từ đầu
Với quán cafe 2 tầng, phần kết cấu gần như không thể sửa rẻ nếu làm sai ngay từ đầu. Chỉ cần vượt nhịp sàn, nâng chiều cao tầng hoặc bố trí tải trọng không hợp lý, chi phí sẽ tăng mạnh mà chủ đầu tư rất khó kiểm soát.

Điều quan trọng là kết cấu phải được tính đúng cho mô hình quán cafe, không áp dụng máy móc tiêu chuẩn của nhà ở hay công trình khác. Một giải pháp kết cấu vừa đủ – không dư, không thiếu – giúp giảm khối lượng bê tông, thép và rút ngắn thời gian thi công.
Thiết kế hệ MEP thông minh để không “đập đi làm lại”
Rất nhiều quán cafe 2 tầng phát sinh chi phí không phải vì thiết kế xấu, mà vì hệ MEP được làm sau kiến trúc. Khi điện, nước, điều hòa, thông gió không bám theo layout cố định, việc đục phá để chỉnh sửa trong quá trình thi công gần như là điều không tránh khỏi.

Với mô hình quán cafe, các vị trí như quầy pha chế, khu vệ sinh và khu kỹ thuật cần được khóa sớm để hệ MEP được thiết kế chính xác ngay từ đầu. Chỉ cần thay đổi một điểm cấp thoát nước hoặc đường ống điều hòa, chi phí phát sinh sẽ kéo theo nhiều hạng mục khác.
Lựa chọn vật liệu và phong cách phù hợp ngân sách
Từ góc nhìn kiến trúc sư, vật liệu phù hợp ngân sách là vật liệu dễ thi công, ổn định và có tính lặp cao. Thay vì chạy theo vật liệu đắt tiền, hiệu quả thẩm mỹ nên được tạo ra từ bố cục không gian, ánh sáng và tỷ lệ, giúp quán vẫn có điểm nhấn mà không làm tăng chi phí đầu tư.

Phong cách thiết kế quán cà phê cũng cần được chọn dựa trên quy mô quán và mức đầu tư thực tế. Một phong cách đơn giản, nhất quán sẽ giúp kiểm soát chi phí tốt hơn nhiều so với việc pha trộn quá nhiều yếu tố trang trí. Khi phong cách và vật liệu được quyết định đúng ngay từ đầu, quán cafe 2 tầng sẽ tránh được việc thay đổi giữa chừng và hạn chế tối đa tình trạng đội vốn.
Nên chọn đơn vị thi công và thiết kế trọn gói ngay từ đầu
Một trong những nguyên nhân khiến quán cafe 2 tầng phát sinh chi phí là việc tách rời đơn vị thiết kế và thi công. Khi bản vẽ được triển khai bởi một bên, còn thi công do bên khác thực hiện, sự thiếu đồng bộ rất dễ dẫn đến hiểu sai thiết kế, điều chỉnh tại công trường và kéo theo chi phí ngoài dự toán.

Với mô hình thiết kế thi công trọn gói, các giải pháp kỹ thuật, vật liệu và chi tiết thi công đã được tính toán ngay từ giai đoạn thiết kế, dựa trên năng lực thi công thực tế. Điều này giúp hạn chế tình trạng “vẽ thì đẹp nhưng làm không được”, vốn là nguyên nhân phổ biến gây phát sinh.
>>>Xem thêm: Thiết kế quán cà phê trọn gói giúp tăng doanh thu bền vững
Để không đội chi phí đầu tư khi thiết kế quán cafe 2 tầng, điều quan trọng nhất là kiểm soát ngay từ giai đoạn thiết kế: từ ngân sách, mặt bằng, kết cấu đến hệ kỹ thuật và thi công đồng bộ. Với kinh nghiệm thiết kế – thi công trọn gói nhiều dự án F&B, 5E Design giúp chủ đầu tư dự đoán trước rủi ro và tối ưu chi phí ngay trên bản vẽ. Nếu bạn đang chuẩn bị làm quán cafe 2 tầng và muốn kiểm soát ngân sách hiệu quả, hãy liên hệ 5E Design để được tư vấn giải pháp phù hợp ngay từ đầu.
