Bố trí mặt bằng quán cafe là yếu tố quan trọng quyết định trải nghiệm khách hàng và hiệu quả vận hành ngay từ những ngày đầu kinh doanh. Một layout khoa học giúp tối ưu luồng di chuyển, tận dụng diện tích hợp lý và hạn chế phát sinh chi phí sửa chữa sau khi quán đi vào hoạt động. Trong bài viết này, bạn sẽ hiểu rõ các nguyên tắc bố trí mặt bằng quán cafe chuyên nghiệp để xây dựng không gian vừa thẩm mỹ vừa đảm bảo hiệu quả kinh doanh lâu dài.
Phân chia khu chức năng quán cafe gồm những khu vực nào?
Khu order và thanh toán

- Là khu vực đầu tiên khách tiếp cận khi bước vào quán
- Nên đặt gần lối vào để khách dễ dàng gọi món và giảm ùn tắc giờ cao điểm
- Có thể tích hợp menu treo tường hoặc màn hình điện tử giúp tăng tốc độ order
Khu pha chế (quầy bar)
- Trung tâm vận hành chính của quán cafe
- Cần bố trí thuận tiện cho nhân viên thao tác, hạn chế di chuyển nhiều
- Thường đặt gần khu order để đảm bảo quy trình phục vụ nhanh chóng
Khu ngồi khách

- Chiếm diện tích lớn nhất trong mặt bằng
- Nên đa dạng kiểu chỗ ngồi: bàn 2 người, bàn nhóm, ghế sofa, bàn làm việc
- Bố trí khoảng cách hợp lý giúp khách cảm thấy thoải mái và riêng tư
Khu bếp (nếu có phục vụ đồ ăn)

- Áp dụng cho quán cafe có bánh, brunch hoặc món nóng
- Nên bố trí tách biệt khu khách để đảm bảo vệ sinh và hạn chế mùi
- Cần tính toán luồng di chuyển giữa bếp và quầy phục vụ
Khu vệ sinh

- Bố trí kín đáo nhưng vẫn dễ tìm
- Đảm bảo tiêu chuẩn sạch sẽ và thuận tiện cho khách
- Vị trí nên tách khỏi khu pha chế và khu ăn uống
Kho lưu trữ

- Dùng để chứa nguyên vật liệu, ly tách, dụng cụ
- Giúp quầy bar gọn gàng và tối ưu quy trình vận hành
- Nên đặt gần khu pha chế để thuận tiện bổ sung nguyên liệu
Khu chờ hoặc khu check-in (tùy concept)
- Giúp tăng trải nghiệm khách hàng và tạo điểm nhấn thương hiệu
- Có thể kết hợp trang trí logo hoặc góc chụp ảnh
- Phù hợp với quán cafe định hướng lifestyle hoặc social media
Nguyên tắc bố trí mặt bằng quán cafe chuyên nghiệp

- Tối ưu luồng di chuyển giữa các khu chức năng: Luồng di chuyển cần rõ ràng từ cửa vào – order – nhận nước – chọn chỗ ngồi để tránh ùn tắc giờ cao điểm. Bố trí lối đi hợp lý giúp tăng tốc độ phục vụ và nâng cao trải nghiệm khách hàng.
- Phân chia công năng phù hợp mô hình kinh doanh: Mỗi mô hình như cafe takeaway, cafe làm việc hay cafe sân vườn sẽ có cách bố trí mặt bằng khác nhau. Xác định đúng mô hình giúp tối ưu diện tích và tăng hiệu quả vận hành.
- Đảm bảo tỷ lệ diện tích hợp lý giữa các khu vực: Diện tích nên ưu tiên cho khu khách ngồi nhưng vẫn đảm bảo đủ không gian cho quầy pha chế và khu phụ trợ. Phân bổ khoa học giúp tận dụng tối đa diện tích kinh doanh.
- Tối ưu trải nghiệm khách hàng trong từng điểm chạm: Khoảng cách bàn ghế, ánh sáng và lối đi cần được tính toán để tạo cảm giác thoải mái. Không gian thuận tiện giúp khách ở lại lâu hơn và tăng khả năng quay lại.
- Cân bằng giữa thẩm mỹ và công năng: Thiết kế cần đảm bảo vừa đẹp vừa thuận tiện cho vận hành thực tế. Tránh tập trung quá nhiều vào trang trí nhưng lại gây bất tiện cho nhân viên và khách hàng.
- Dự trù khả năng mở rộng trong tương lai: Mặt bằng nên linh hoạt để dễ nâng cấp menu hoặc thay đổi concept khi cần. Việc dự trù từ đầu giúp hạn chế chi phí sửa chữa sau này.
- Đảm bảo yếu tố kỹ thuật khi thiết kế mặt bằng: Hệ thống điện, nước và thông gió cần bố trí phù hợp với khu pha chế và bếp. Thiết kế đúng kỹ thuật giúp quán vận hành ổn định và tiết kiệm chi phí bảo trì.
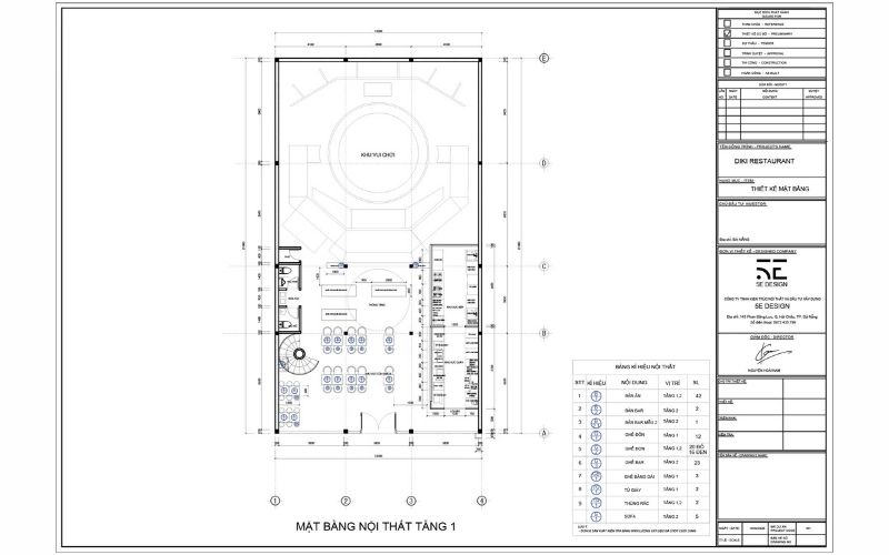
Sơ đồ công năng quán cafe

Sơ đồ công năng quán cafe dưới đây là phương án bố trí mặt bằng thực tế của dự án Diki Đà Nẵng do 5E Design triển khai, được xây dựng dựa trên hành vi khách hàng và quy trình vận hành F&B. Layout được phân chia rõ ràng giữa khu order, quầy pha chế, khu ngồi khách và khu phụ trợ nhằm tối ưu luồng di chuyển, giảm ùn tắc vào giờ cao điểm. Cách bố trí này giúp tận dụng hiệu quả diện tích kinh doanh và nâng cao trải nghiệm khách hàng ngay từ lần ghé đầu tiên.

Trong sơ đồ công năng quán Diki, các khu chức năng được sắp xếp khoa học để đảm bảo nhân viên thao tác thuận tiện và phục vụ nhanh chóng. Không gian ngồi được phân bổ hợp lý theo nhóm khách hàng mục tiêu, kết hợp lối đi thông thoáng giúp tăng sự thoải mái khi sử dụng dịch vụ. Đây là ví dụ điển hình cho giải pháp bố trí mặt bằng quán cafe chuyên nghiệp giúp tối ưu vận hành và gia tăng hiệu quả kinh doanh bền vững.
>>>Xem thêm:
- Những lưu ý quan trọng trước khi thuê thiết kế quán cafe mà chủ đầu tư không nên bỏ qua
- Khám phá 05 xu hướng thiết kế quán cafe hiện nay để tăng doanh thu 2026
Bố trí mặt bằng quán cafe chuyên nghiệp không chỉ giúp không gian đẹp mà còn tối ưu vận hành, nâng cao trải nghiệm khách hàng và gia tăng doanh thu bền vững. Việc phân chia khu chức năng khoa học ngay từ đầu sẽ giúp hạn chế rủi ro phát sinh chi phí sửa chữa và đảm bảo quán hoạt động hiệu quả lâu dài. Nếu bạn đang tìm giải pháp bố trí mặt bằng quán cafe phù hợp với mô hình kinh doanh, 5E Design sẵn sàng tư vấn layout công năng tối ưu, giúp bạn xây dựng không gian ấn tượng và tăng khả năng chuyển đổi khách hàng.
*Hình ảnh tổng hợp từ nhiều nguồn, vui lòng liên hệ nếu cần gỡ hình ảnh liên quan đến bản quyền thiết kế


